Idea projektu
Projekt Domu hybrydowego stanowi odpowiedź na współczesny kryzys mieszkaniowy oraz potrzeby młodych dorosłych wkraczających w samodzielne życie. Budynek ma być formą przejściową pomiędzy akademikiem a klasycznym mieszkaniem — miejscem, które wspiera proces usamodzielniania się, zapewniając jednocześnie wspólnotowość i poczucie bezpieczeństwa.
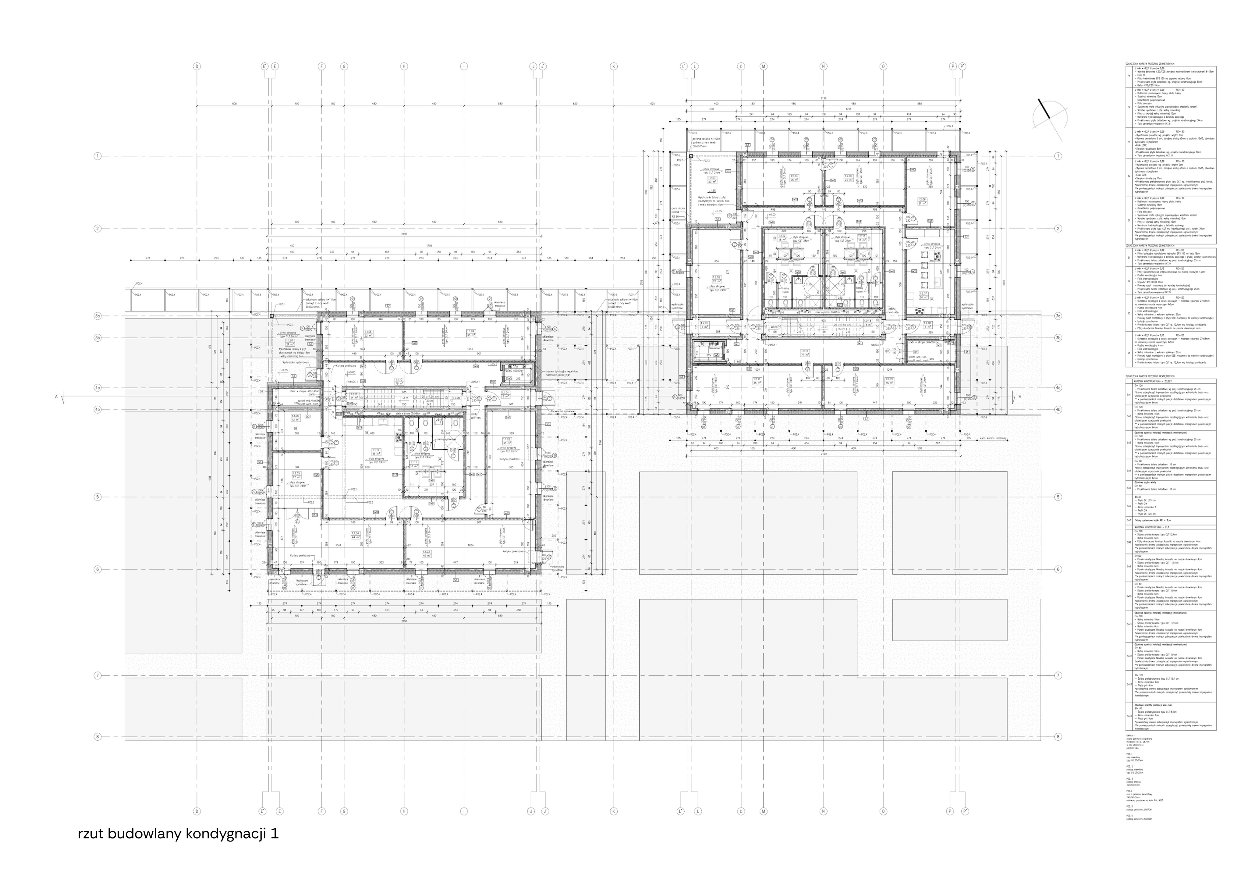
Koncepcja funkcjonalna
Podstawą projektu jest modułowość. Każdy pokój stanowi niezależną jednostkę, którą można łączyć w większe układy w zależności od potrzeb mieszkańców. Układ przestrzenny budynku sprzyja elastyczności użytkowania oraz integracji — pomiędzy prywatnymi strefami znajdują się liczne przestrzenie wspólne: kuchnie, jadalnie, pralnie, czytelnie, siłownia, przestrzeń coworkingowa, warsztat oraz tarasy. Celem było stworzenie miejsca, które nie tylko zapewnia dach nad głową, lecz także wspiera rozwój społeczny, fizyczny i zawodowy jego użytkowników.

Podstawą koncepcji jest modułowość i elastyczność. Główna konstrukcja budynku wykonana z paneli CLT zapewnia trwałość, lekkość i ekologiczny charakter obiektu. Zewnętrzna konstrukcja stalowa umożliwia indywidualne rozbudowy — dodanie balkonów, ogrodów zimowych lub donic z pnączami. Dzięki temu każdy moduł może stać się unikalny, tworząc prywatną mikroprzestrzeń o różnym stopniu otwartości i integracji z otoczeniem.






Elewacja
Elewacja została zaprojektowana jako neutralne tło dla tej zmienności. Połączenie naturalnych odcieni drewna i betonu podkreśla prostotę formy, jednocześnie pozwalając, by to użytkownicy i roślinność nadawały jej charakter. Drewniane żaluzje wprowadzają subtelny ruch i grę światła, a sezonowe zmiany barw pnączy oplatających drugą konstrukcję sprawiają, że fasada żyje w rytmie natury — pozostając w nieustannej przemianie.

KONTAKT
Agnieszka Bednarz
786-130-730
agnieszka.bednarz0805@gmail.com
