
Willa miejska
Architektura mieszkaniowa
Sopot dolny
01 koncepcja
01 koncepcja
Idea projektu
Punktem wyjścia dla koncepcji było ukształtowanie domu jako współczesnej, klarownie skomponowanej bryły, która z jednej strony buduje poczucie prywatności od strony ulicy, a z drugiej otwiera się na ogród, światło i codzienne życie domowników. Program funkcjonalny podporządkowano komfortowi użytkowania – z czytelnym podziałem na reprezentacyjną strefę dzienną, rozbudowaną część rekreacyjną oraz kameralną strefę nocną na piętrze. Kompozycja przenikających się prostopadłościanów, horyzontalne zadaszenie oraz kontrast drewna i betonu architektonicznego nadają budynkowi spokojny, rezydencjonalny charakter.
Idea projektu
Punktem wyjścia dla koncepcji było ukształtowanie domu jako współczesnej, klarownie skomponowanej bryły, która z jednej strony buduje poczucie prywatności od strony ulicy, a z drugiej otwiera się na ogród, światło i codzienne życie domowników. Program funkcjonalny podporządkowano komfortowi użytkowania – z czytelnym podziałem na reprezentacyjną strefę dzienną, rozbudowaną część rekreacyjną oraz kameralną strefę nocną na piętrze. Kompozycja przenikających się prostopadłościanów, horyzontalne zadaszenie oraz kontrast drewna i betonu architektonicznego nadają budynkowi spokojny, rezydencjonalny charakter.

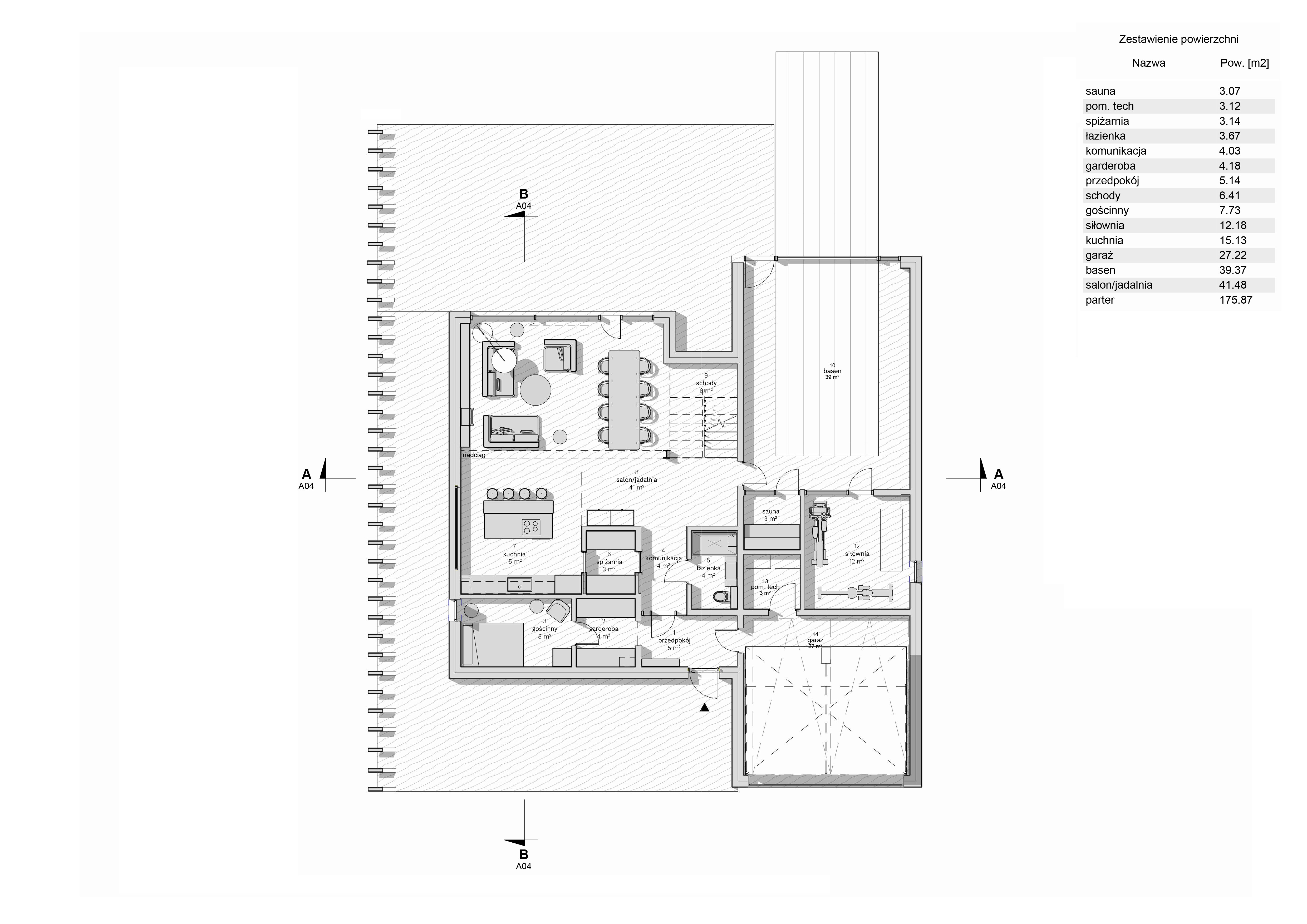
Organizacja funkcji
Program domu oparto na czytelnym podziale na strefę dzienną, techniczno-rekreacyjną oraz nocną. Parter koncentruje główne funkcje wspólne – otwartą przestrzeń salonu, jadalni i kuchni, uzupełnioną o spiżarnię dostępną zarówno od strony kuchni, jak i komunikacji prowadzącej z garażu. W strefie wejściowej przewidziano również pokój gościnny oraz rozbudowane zaplecze garderobiane, co porządkuje codzienne użytkowanie domu i podnosi komfort przyjmowania gości. Część rekreacyjna z sauną, niewielką siłownią i basenem stanowi integralne rozszerzenie programu mieszkalnego, podkreślając rezydencjonalny charakter założenia. Na piętrze zaprojektowano bardziej kameralną strefę prywatną – z apartamentem master wyposażonym w garderobę i prywatną łazienkę, pokojami dzieci połączonymi wspólną garderobą oraz zapleczem pomocniczym w postaci pralni. Funkcje rozmieszczono tak, aby zapewnić intuicyjną komunikację, komfort codziennego użytkowania i wyraźne rozdzielenie stref o różnym stopniu prywatności.
Organizacja funkcji
Program domu oparto na czytelnym podziale na strefę dzienną, techniczno-rekreacyjną oraz nocną. Parter koncentruje główne funkcje wspólne – otwartą przestrzeń salonu, jadalni i kuchni, uzupełnioną o spiżarnię dostępną zarówno od strony kuchni, jak i komunikacji prowadzącej z garażu. W strefie wejściowej przewidziano również pokój gościnny oraz rozbudowane zaplecze garderobiane, co porządkuje codzienne użytkowanie domu i podnosi komfort przyjmowania gości. Część rekreacyjna z sauną, niewielką siłownią i basenem stanowi integralne rozszerzenie programu mieszkalnego, podkreślając rezydencjonalny charakter założenia. Na piętrze zaprojektowano bardziej kameralną strefę prywatną – z apartamentem master wyposażonym w garderobę i prywatną łazienkę, pokojami dzieci połączonymi wspólną garderobą oraz zapleczem pomocniczym w postaci pralni. Funkcje rozmieszczono tak, aby zapewnić intuicyjną komunikację, komfort codziennego użytkowania i wyraźne rozdzielenie stref o różnym stopniu prywatności.

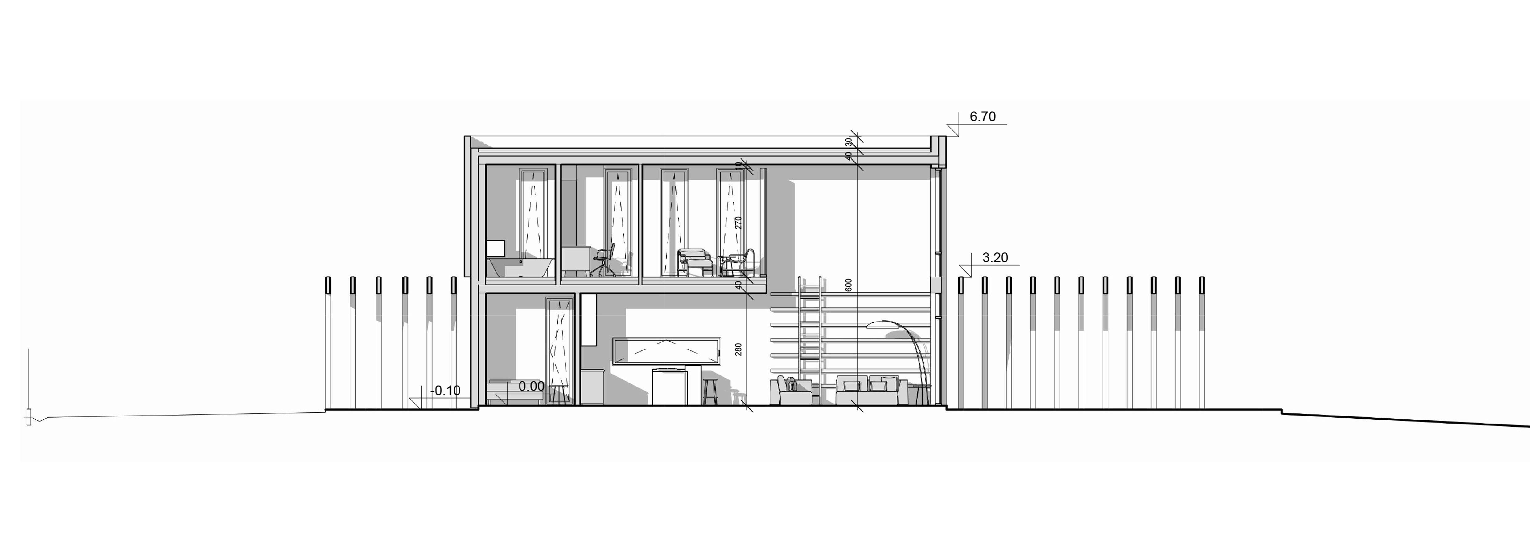
Bryła i wyraz architektoniczny
Forma budynku opiera się na zestawieniu przenikających się, prostych brył o zróżnicowanej wysokości i wyraźnie podkreślonej osi horyzontalnej. Kluczowym motywem kompozycyjnym jest rozległe zadaszenie spinające całość i budujące mocny podział pomiędzy ciemniejszą, bardziej osadzoną częścią parteru a lżejszą, monolityczną formą piętra. Kontrast drewna i betonu architektonicznego, ograniczenie otwarć od strony ulicy oraz większe otwarcie ku ogrodowi pozwoliły uzyskać architekturę jednocześnie introwertyczną i reprezentacyjną. Dodatkowym środkiem wyrazu są pionowe ryflowania i rytmiczne elementy przesłaniające, które porządkują elewację i wzmacniają grę światła na powierzchni bryły.
Bryła i wyraz architektoniczny
Forma budynku opiera się na zestawieniu przenikających się, prostych brył o zróżnicowanej wysokości i wyraźnie podkreślonej osi horyzontalnej. Kluczowym motywem kompozycyjnym jest rozległe zadaszenie spinające całość i budujące mocny podział pomiędzy ciemniejszą, bardziej osadzoną częścią parteru a lżejszą, monolityczną formą piętra. Kontrast drewna i betonu architektonicznego, ograniczenie otwarć od strony ulicy oraz większe otwarcie ku ogrodowi pozwoliły uzyskać architekturę jednocześnie introwertyczną i reprezentacyjną. Dodatkowym środkiem wyrazu są pionowe ryflowania i rytmiczne elementy przesłaniające, które porządkują elewację i wzmacniają grę światła na powierzchni bryły.

Światłocień
Światłocień
Charakter tej koncepcji buduje nie tylko forma, ale również światłocień tworzony przez rytmiczne zadaszenie prowadzone przez całą szerokość budynku.
Charakter tej koncepcji buduje nie tylko forma, ale również światłocień tworzony przez rytmiczne zadaszenie prowadzone przez całą szerokość budynku.

03 projekt

rzut koncepcyjny
parter

rzut koncepcyjny
piętro
03 projekt

rzut koncepcyjny
parter

rzut koncepcyjny
piętro

przekrój a-a

przekrój b-b

przekrój a-a

przekrój b-b

aksonometria parter

aksonometria pietro

aksonometria parter

aksonometria pietro

elewacje północna

elewacje wschodnia

elewacje południowa

elewacje zachodnia

elewacje północna

elewacje wschodnia

elewacje południowa

elewacje zachodnia
autorka projektu: Agnieszka Bednarz

Willa miejska
Architektura mieszkaniowa
Sopot dolny

Willa miejska
Architektura mieszkaniowa
Sopot dolny
KONTAKT
Agnieszka Bednarz
786-130-730
agnieszka.bednarz0805@gmail.com