Osiedle Zaspa w Gdańsku to jedno z najbardziej rozpoznawalnych miejsc w mieście ze względu na swój heksagonalny układ. Jednym z wyróżniających elementów tego osiedla są liczne murale, które zdobią bloki mieszkalne, tworząc wyjątkową galerię sztuki na świeżym powietrzu. Osiedle jest również siedzibą Domu Kultury PLAMA, który organizuje liczne wydarzenia kulturalne, warsztaty i wystawy, przyciągając zarówno mieszkańców, jak i turystów.

Niemniej jednak Zaspa boryka się z kilkoma poważnymi problemami. Intensywna nowa zabudowa powoduje chaos przestrzenny. Silne wiatry, charakterystyczne dla tej części miasta, bywają uciążliwe dla mieszkańców, a nieuporządkowana zieleń dodatkowo potęguje wrażenie chaosu. Problemy te wpływają na jakość życia i estetykę osiedla, wymagając kompleksowych działań naprawczych i planistycznych.






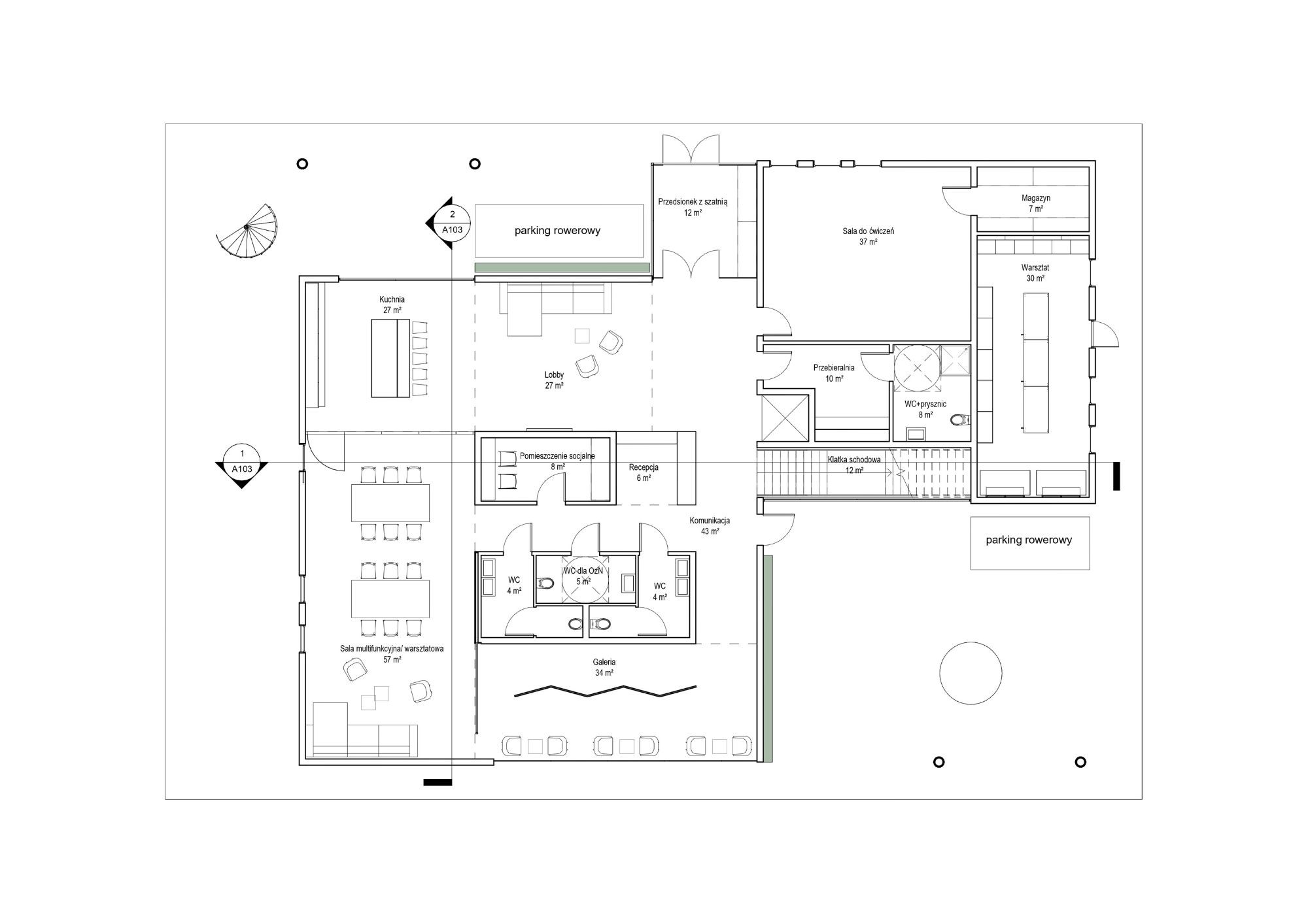
dlaczego dom sąsiedzki?
Wybudowanie domu sąsiedzkiego na Zaspie mogłoby znacząco poprawić jakość życia mieszkańców, oferując im przestrzeń do integracji i organizacji różnorodnych wydarzeń społecznych. Taki obiekt mógłby również współpracować z Domem Kultury PLAMA, wzbogacając ofertę kulturalną osiedla i wspierając lokalne inicjatywy. Ponadto, dom sąsiedzki mógłby przeciwdziałać problemom przestrzennym i wspierać działania na rzecz uporządkowania zieleni, angażując mieszkańców w działania prospołeczne i proekologiczne.





KONTAKT
Agnieszka Bednarz
786-130-730
agnieszka.bednarz0805@gmail.com





